20240717_17425l2
IS24_akquisemotiv_800x616px_Wert 2025 V5
Frontansicht Haus 1
Frontansicht Haus 2
Frontansicht Haus 3 inkl Parkplätze
Frontansicht Haus 4 inkl. Parkplätze
IS24_akquisemotiv_800x616p.jpg
Lagerfläche
Ladenfläche Bild 1
Ladenfläche Bild 2
Ladenfläche Bild 3
Ladenfläche Bild 4
Büro
Flur Büro Richtung WCs
Küche mit Abstellkammer
WC 2 mit 2 Bidgets
WC 1 mit Bidget
Energieskala
IS24_akquisemotiv_800x616p.jpg

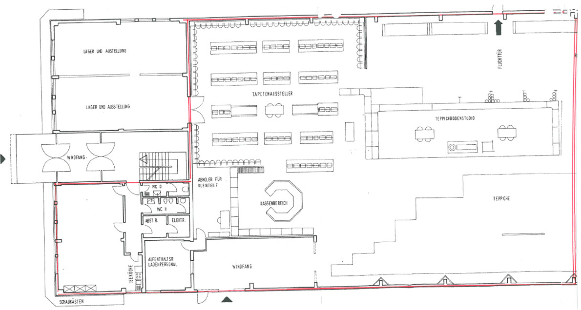
Praktische Verkaufsfläche mit ca. 960qm im Gewerbegebiet "Hulb" in Böblingen mit 4 Parkplätzen

71034 Böblingen, Hanns-Klemm-Str. 7

Beschreibung

Diese Gewerbefläche aus dem Baujahr 1978 besticht durch ihre solide Bauweise und ihren gepflegten Zustand. Die Immobilie verfügt über eine Zentralheizung, die für wohlige Wärme in den Räumlichkeiten sorgt. Mit einer Gesamtfläche von 960 Quadratmetern bietet sie ausreichend Platz für vielfältige Nutzungsmöglichkeiten.
Die Räumlichkeiten verteilen sich auf mehrere großzügige Ausstellungsflächen, Büros, Besprechungsräume und einen Empfangsbereich. Die Flächen können nach Rücksprache ggf. noch angepasst werden.
Zusätzlich verfügt die Gewerbefläche über eine vollausgestattete Küche sowie Sanitäranlagen. Ein separater Lagerraum bietet ausreichend Platz für Akten oder Materialien. Parkplätze stehen direkt vor dem Gebäude zur Verfügung, was die Erreichbarkeit für Mitarbeiter und Kunden erleichtert. Die Immobilie befindet sich in einer verkehrsgünstigen Lage mit guter Anbindung an öffentliche Verkehrsmittel und Autobahnen.
Der Vermieter plant derzeit eine Vermietung bis zum 31. Dezember 2026.

Ausstattungs­beschreibung

- beziehbar ab 01.01.2026 bis 31.12.2026
- großzügige Ladenfläche mit ca. 960qm
- helle, einladende Verkaufsfläche
- sep. Büroraum
- sep. Küche mit Abstellkammer
- 2 sep. WCs und 3 Bidgets
- 4 PKW-Außenstellplätze direkt vor dem Gebäude
- EG OG
- Aufteilung möglich
- sehr gute Verkehrsanbindung

Lage und Verkehrsanbindung

Die Laden-/Bürofläche befindet sich in einem Gewerbegebiet im Stadtteil Böblingen, welcher im Südwesten von Stuttgart liegt. Das Gewerbegebiet ist geprägt von modernen Bürogebäuden und Unternehmensstandorten. In unmittelbarer Nähe befinden sich verschiedene Einkaufsmöglichkeiten sowie Restaurants und Cafés, die eine gute Infrastruktur für Arbeitnehmer bieten.

Die Stadt Böblingen zeichnet sich durch ihre gute Verkehrsanbindung aus. Durch die Nähe zur Autobahn und zum Flughafen Stuttgart ist die Stadt gut erreichbar. Böblingen selbst bietet eine Vielzahl an Freizeit- und Erholungsmöglichkeiten, unter anderem den nahegelegenen Schönbuchwald und den Böblinger See. Zudem verfügt die Stadt über eine Vielzahl an kulturellen Angeboten und Veranstaltungen.

Die Region um Böblingen besticht durch ihre landschaftliche Vielfalt und ihre Nähe zum Schwarzwald. Die Umgebung eignet sich optimal für Outdoor-Aktivitäten wie Wandern, Radfahren oder einfach nur zum Entspannen in der Natur. Zudem punktet die Region mit einer guten wirtschaftlichen Entwicklung und einem vielfältigen Arbeitsmarkt, was sie zu einem attraktiven Standort für Unternehmen macht.

Weitere Informationen

Zur Vereinbarung eines Besichtigungstermins freuen wir uns über Ihren Anruf unter der Telefonnummer 0176/40132037 von Montag bis Freitag zwischen 8.30 Uhr und 12.00 Uhr sowie 14.00 Uhr bis 17.00 Uhr oder über Ihre Nachricht an die E-Mail Adresse beck@moenig-immo.de.

Für Alternativangebote schauen Sie einfach auf unsere Homepage: www.moenig-immo.de

Mit freundlichen Grüßen

i.A. Silvia Beck
Mönig Immobilienmanagement GmbH
Mozartstr. 32
71032 Böblingen

Umsatzsteueridentifikationsnummer: 56336/55367

Hinweise:
Alle Angaben sind ohne Gewähr und basieren ausschließlich auf Informationen, die uns von unserem Auftraggeber übermittelt wurden. Wir übernehmen keine Gewähr für die Vollständigkeit, Richtigkeit und Aktualität dieser Angaben. Zwischenvermietung bleibt vorbehalten.

Grundriss

Plan 0

Fakten

Objektnummer:
1803
Objekttyp:
Büro
Gesamtfläche:
960 m²
Zimmer:
2
Baujahr:
1978
Verfügbarkeit:
Verfügbar

Preisdetails

Nettomiete:
6.240,00 €
Betriebskosten netto:
1.920,00 €
Betriebskosten:
1.920,00 €
Kaution:
3 Monatskaltmieten

Energieeffizienz

Endenergiebedarf:
119.30 kWh/(m²*a)
Energieeffizienzklasse:
D
Stromwert:
27.70
Wesentliche Energieträger:
Oel
Wärmewert:
108.40
Baujahr laut Energieausweis:
1978
Ausstellung:
ab dem 1.5.2014
Energieausweisart:
Energieverbrauchsausweis
Gültig bis:
29.11.2026

Ansprechpartner

Anfrage
Max. 500 Zeichen
Ich habe die Datenschutzvereinbarung gelesen und verstanden, und ich stimme der Verarbeitung meiner persönlichen Daten wie darin beschrieben zu. *