Wohnzimmer
Wertermittlung
Wohnzimmer
Wohnzimmer
Wohnzimmer
Wohnzimmer
Küche
Küche
Balkon
Flur
Gäste WC
Ausblick
Schlafzimmer DG
Schlafzimmer DG 1
Bad DG
Bad DG
Flur DG
Objekt
Vermieterflat 1
Vermieterflat 2
Detlef Schneefuß
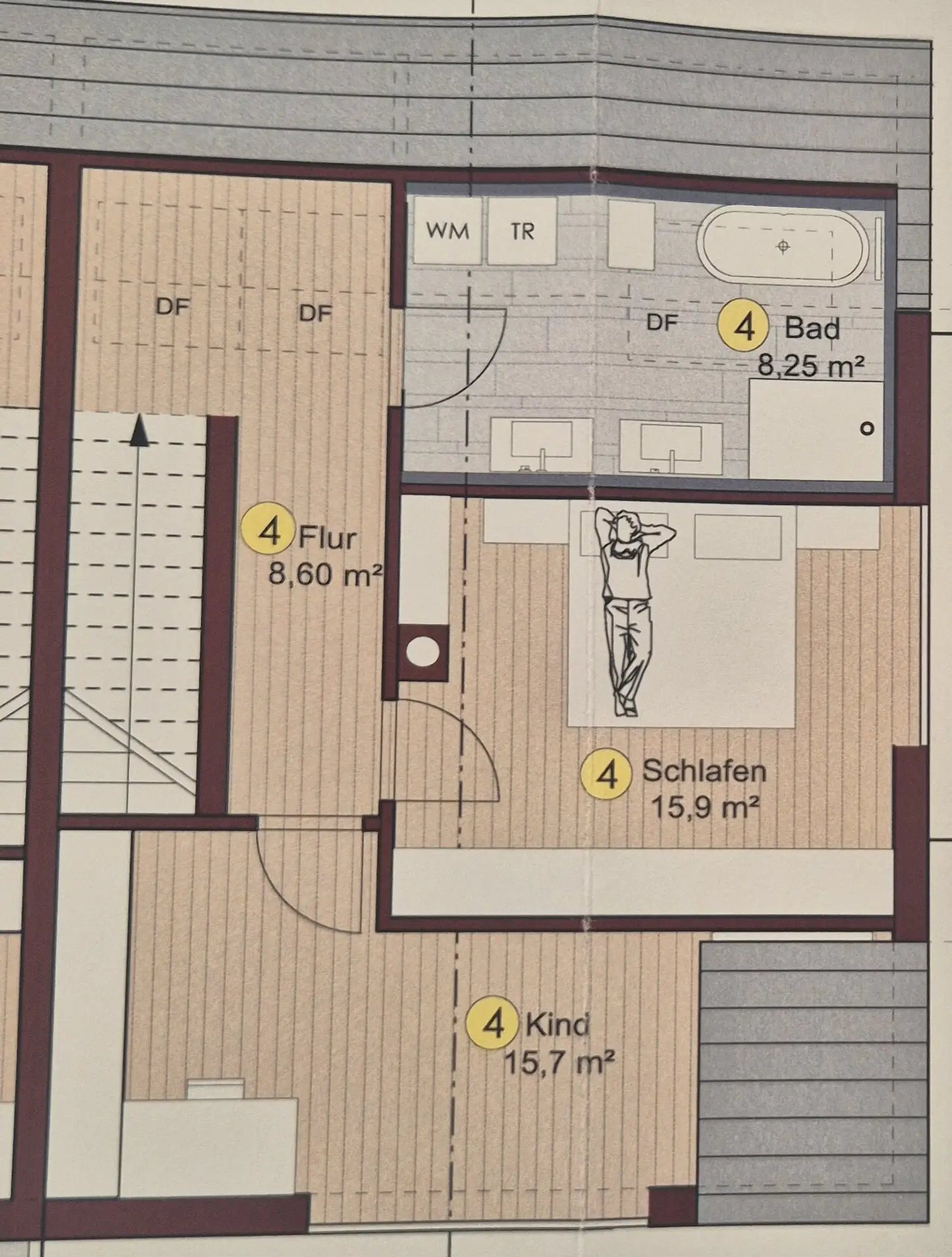
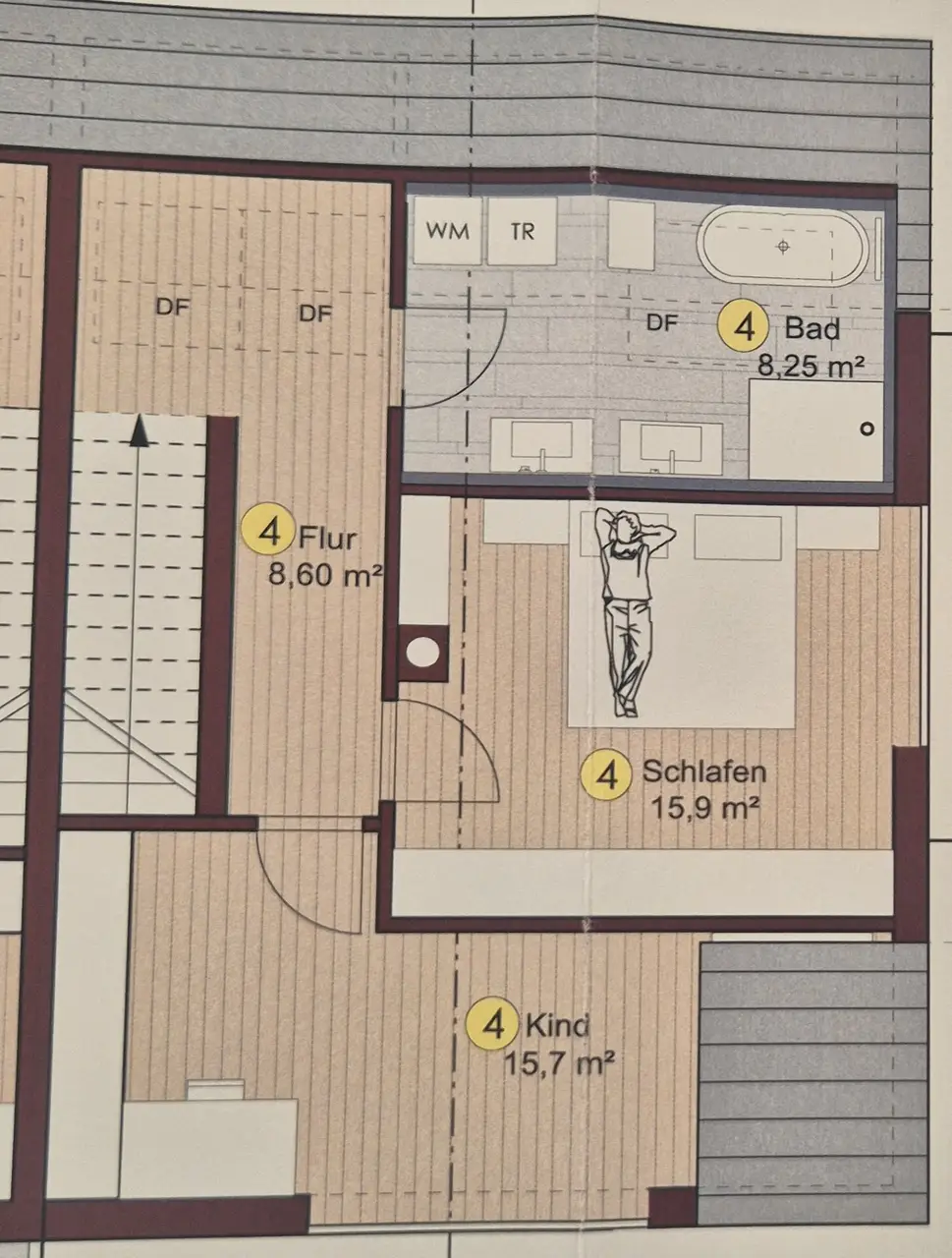
Grundriss DG
Grundriss Garage
Grundriss DG 1

Neuwertig, modern, naturnah – Ihr Zuhause über zwei Etagen in Grafenau

71120 Grafenau, Dätzinger Str. 82

Beschreibung

Willkommen zu Ihrem neuen Zuhause in Grafenau! Diese exquisite Maisonette-Wohnung zur Miete wurde 2011 erbaut und präsentiert sich in einem gepflegten Zustand. Auf großzügigen 98 m² Wohnfläche erwartet Sie ein stilvolles Ambiente, das modernen Wohnkomfort mit Gemütlichkeit verbindet.

Das Herzstück der Wohnung bildet der lichtdurchflutete Wohnbereich mit direktem Zugang zu einem charmanten Balkon, der zum Entspannen einlädt. Die durchdachte Raumaufteilung umfasst insgesamt 3,5 Zimmer, darunter zwei geräumige Schlafzimmer, die erholsame Nächte versprechen. Ein modernes Badezimmer sowie ein praktisches Gäste-WC runden das Angebot ab.

Die Maisonette-Wohnung besticht durch ihre gehobene Ausstattung und die repräsentative Wohnlage in Grafenau. Ideal für Paare oder kleine Familien, die Wert auf stilvolle Wohnqualität legen. Lassen Sie sich von dieser Immobilie begeistern und vereinbaren Sie einen Besichtigungstermin. Hier finden Sie nicht nur ein Zuhause, sondern einen Ort zum Wohlfühlen!

Voraussetzung für einen Mietvertrag ist ein fester Arbeitsvertrag mit geregeltem Einkommen sowie eine positive Schufa-Auskunft, bei Selbstständigkeit die letzten 3-4 BWAs. Der unbefristete Mietvertrag wird auf eine mind. Mietdauer von 2 Jahren abgeschlossen.

Ausstattungs­beschreibung

-3,5 Zimmer, ca. 98 m² Wohnfläche
-1.OG
-Maisonette
-Einbauküche mit Spülmaschine
-sehr gepflegtes Objekt
-Dachgeschoss
-Elektrische Rollläden
-Neuwertig
-Fußbodenheizung
-Terrasse
-Isolierglasfenster
-Aussichtslage
-Abstellkammer
-Haus Bj. 2011
-4 Fam.Haus
-Bad mit Dusche+Wanne+WC+Fenster
-Kellerraum
-PkW-Stellplatz
-TG - STellplatz

Lage und Verkehrsanbindung

Diese attraktive Maisonette-Wohnung befindet sich im charmanten Städtchen Grafenau, eingebettet in die malerische Landschaft des Landkreises Böblingen in Baden-Württemberg. Grafenau bietet eine harmonische Kombination aus ländlichem Flair und der Nähe zu urbanen Annehmlichkeiten. Die Umgebung ist geprägt von weitläufigen Grünflächen und Wäldern, die zu ausgedehnten Spaziergängen und Freizeitaktivitäten einladen.

Die Wohnung liegt in einer ruhigen und familienfreundlichen Wohngegend, die sich durch ihre hohe Lebensqualität auszeichnet. In der näheren Umgebung finden Sie eine gute Auswahl an Einkaufsmöglichkeiten, Schulen und Kindergärten. Für Pendler ist die Lage ideal, da Grafenau über eine gute Verkehrsanbindung verfügt. Die nahe gelegenen Städte Sindelfingen und Böblingen bieten weitere Einkaufsmöglichkeiten sowie ein breites kulturelles Angebot.

Die Region ist zudem durch ein gut ausgebautes Netz öffentlicher Verkehrsmittel erschlossen, was eine flexible Mobilität garantiert. Genießen Sie die Vorzüge einer idyllischen Wohnlage mit der Möglichkeit, die pulsierende Landeshauptstadt Stuttgart binnen kurzer Zeit zu erreichen, um von deren vielfältigen Angeboten zu profitieren. Grafenau vereint in einzigartiger Weise Ruhe und Zentralität, was diesen Standort besonders attraktiv macht.

Weitere Informationen

Zur Vereinbarung eines Besichtigungstermins freuen wir uns über Ihren Anruf
unter der Telefonnummer 0176 42928286 von Montag bis Freitag zwischen
9.00 Uhr und 12.00 Uhr sowie 14.00 Uhr bis 17.00 Uhr oder über Ihre Nachricht
an die E-Mail-Adresse schneefuss@moenig-immo.de.
Für Alternativangebote schauen Sie einfach auf unsere Homepage:
www.moenig-immo.de
Mit freundlichen Grüßen
i.A. Detlef Schneefuß
Mönig Immobilienmanagement GmbH
Mozartstr. 32
71032 Böblingen

Umsatzsteueridentifikationsnummer: 56336/55367

Hinweise:
Alle Angaben sind ohne Gewähr und basieren ausschließlich auf Informationen, die uns von unserem Auftraggeber übermittelt wurden. Wir übernehmen keine Gewähr für die Vollständigkeit, Richtigkeit und Aktualität dieser Angaben. Zwischenvermietung bleibt vorbehalten. Sollte das von uns nachgewiesene Objekt bereits bekannt sein, teilen Sie uns dies bitte unverzüglich mit.

Im Übrigen gelten die allgemeinen Geschäftsbedingungen für die Rechtsbeziehung
zwischen Ihnen und der Firma Mönig Immobilienmanagement GmbH.

Fakten

Objektnummer:
1783
Objekttyp:
Wohnung
Balkon:
1
Wohnfläche:
98 m²
Zimmer:
3,5
Schlafzimmer:
2
Badezimmer:
1
Toilette:
1
Baujahr:
2010
Zustand:
Gepflegt
Verfügbarkeit:
Verfügbar

Preisdetails

Betriebskosten netto:
250,00 €
Gesamtmiete:
1.380,00 €
Bruttomiete:
1.030,00 €
Garage Kosten brutto:
70,00 €
Parkplatz Kosten brutto:
30,00 €
Betriebskosten:
250,00 €
Kaution:
3.000,00 €

Energieeffizienz

Endenergiebedarf:
55.40 kWh/(m²*a)
Energieeffizienzklasse:
B
Wesentliche Energieträger:
Gas
Baujahr laut Energieausweis:
2010
Ausstellung:
ab dem 1.5.2014
Energieausweisart:
Energiebedarfsausweis
Gültig bis:
26.10.2025

Ansprechpartner

Anfrage
Max. 500 Zeichen
Ich habe die Datenschutzvereinbarung gelesen und verstanden, und ich stimme der Verarbeitung meiner persönlichen Daten wie darin beschrieben zu. *